Wohnen im Grünen
In der Bad Wurzacher Teilgemeinde Haidgau entsteht ein schönes, barrierefreies Mehrfamilienwohnhaus mit sechs sonnigen Wohnungen. Freuen Sie sich auf moderne Architektur in zentraler Ortslage "Am Dangelspitz". Das massive Wohnhaus wird auf energetisch neuestem Stand erstellt und bietet durch seine sorgfältig geplante und durchdachte Raumaufteilung ein komfortables und qualitätsvolles Wohnerlebnis. Die Wohnungen bieten mit einer Wohnfläche von ca. 95 qm viel Platz für Familien, Paare oder Singles. Zu jeder Wohnung gehört ein großer sonniger Balkon. Zu den Erdgeschoss-Wohnungen ein Gartenanteil. Carport-Garagen und Stellplätze sind ebenfalls vorhanden. Der Vertriebsstart ist für das 1. Quartal 2026 geplant. Gerne informieren wir Sie über den aktuellen Planungsstand. Entscheiden Sie sich frühzeitig für eine Wohnung, so können Sie umsetzbare Wohnwünsche gerne einbringen.
-
Baubeginn voraussichtlich1. Halbjahr 2026
-
Fertigstellung voraussichtlich2. Halbjahr 2027
-
Wohnungen3 Zimmer | ca. 95 qm
-
OrtDangelspitzstraße, Bad Wurzach-Haidgau
-
BauherrHäfele Bauprojekte GmbH
-
Effizienzhaus
-
Barrierefrei
-
Erdwärme
-
Nachhaltig
-
Regional
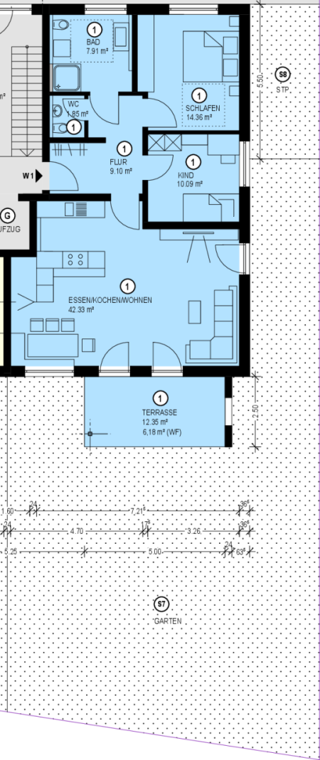
Grundriss EG-Wohnungen
Die 3-Zimmer-Wohnungen im Erdgeschoss verfügen über einen nach Südosten ausgerichteten modernen Wohn- und Essbereich. Das helle Schlafzimmer ist sehr geräumig. Das Badezimmer bietet Tageslicht. Zu den Wohnungen gehört ein Gartenanteil.
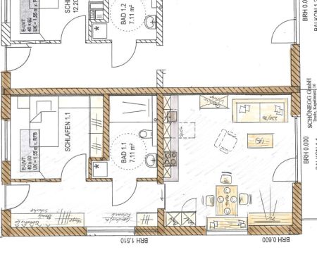
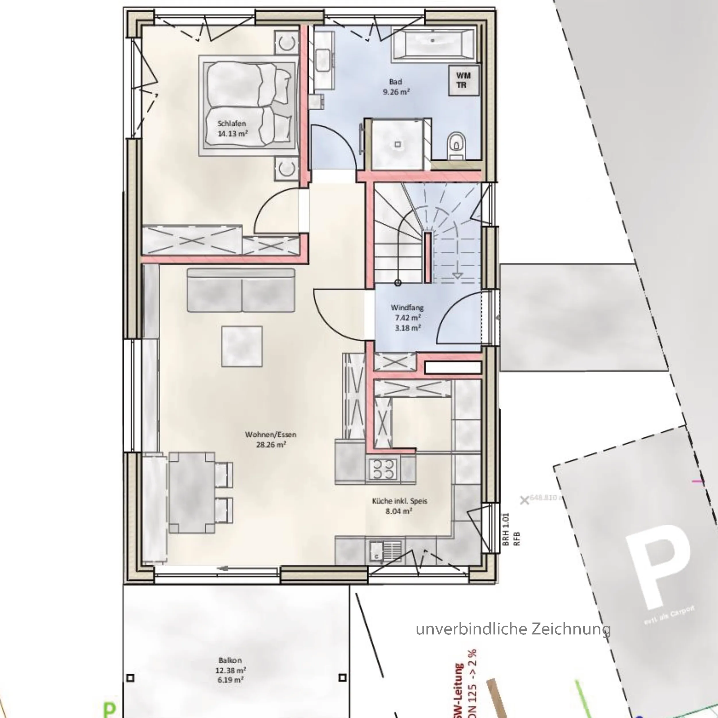
Grundriss OG Wohnungen und Maisonette
Die 3-Zimmer-Wohnungen im Obergeschoß und Dachgeschoß verfügen über einen nach Südosten ausgerichteten modernen Wohn- und Essbereich. Das helle Schlafzimmer ist sehr geräumig. Das Badezimmer bietet Tageslicht. Zu den Wohnungen gehört ein großer Balkon.
Vertrieb: Johannes Häfele und Corinna Prinz
Baukonzept und Abwicklung: Willi Häfele, Julian Häfele und Jürgen Maucher
HÄFELE BAUPROJEKTE GMBH
Als Team im familiären Umfeld agierend, erzielen wir gemeinschaftlich unsere Erfolge. Dies spiegelt sich auch in der sehr hohen Kundenzufriedenheit wider. „Wir bauen auf eine faire und vertrauensvolle Partnerschaft, in der man sich aufeinander verlassen kann.” Dank langjähriger Erfahrung können wir auf eigene Werte aufbauen, die unseren Kunden neben Zuverlässigkeit, Wirtschaftlichkeit, Termintreue und Qualität auch zukunftsweisende Konzepte bieten. Die Projektumsetzungen erfolgen mit kompetenten und qualitativ hochwertigen Fachfirmen aus der Region, die die Anforderungen einer qualitätsbewussten und nachhaltigen Bauweise erfüllen.

